Pre-planning consultion, July 12 2019

4. Community Centre proposal

Proposed entrance to cafe and terrace leading off main sports hall

Posted – Jul 23, 2019

The existing community centre sits at the heart of much of day to day life within the surrounding area of Jericho and the proposal aims to elevate the existing provision and provide greater access to spaces, enhanced facilities and new opportunities within a specialised new building, enjoying a canalside environment.

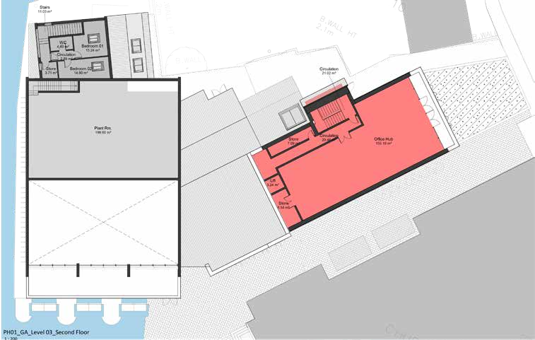
Phasing Strategy

The building will be developed in two phases. The first will be constructed (by JWRC, with fitout by JWT) alongside the residential housing, canal works, bridge and formation of the public square. The second phase will be funded and built by the Jericho Wharf Trust (JWT) at a later date.

Phase 1 - incorporates a cafe and kitchen on the ground floor. This is a space designed to bring the community together and maximise views over the square and canal. The second key part of the ground floor is the boatyard and workshop. This will be managed by an experienced operator and provide space for the boating community to carry out maintenance and repair works within the two dry and one wet dock. The facility is aided by a large workshop, laundry and temporary accommodation for those who are working on their boats. This is accessed via a private staircase to the rear of the building and is designed for short stay guests only. The first floor of phase 1 houses a sports hall, sized to meet Sports England community hall standards, a dance hall, changing and shower facilities as well as a kitchenette opening on to the sports hall to cater for events in the space. This can then be opened up on to a large terrace overlooking the canal and square. Alongside these key spaces, there is a cafe and exhibition space, meeting room and two counseling rooms to be privately hired. The shell structure of Phase 1 will be developed and handed over to the operator (JWT) for fit-out.

Phase 2 - gives the community opportunity to expand and enhance the spaces already provided. The predominant part of this is a pre-school on the ground floor which utilises an outdoor play space and large classroom. On the upper floors there is opportunity to provide a number of meeting spaces and function rooms which can bring vital income to the community centre, as well as acting a space to bring people together, grow local businesses and create a thriving centre at the heart of the community.

Ground floor

First floor

Second floor

Consultation boards

Pre-planning consultation

{news_caption}

1. Background

{news_caption}
The ground floor plan of the application that was approved in 2016.

2. What is changing?

{news_caption}
Proposed site plan for community centre, residential and boatyard.

3. Arrangement on Site

{news_caption}
1. St Barnabas Church 2. Piazza with art work at centre 3. New access to St Barnabas Church 4. Community boatyard, workshop, laundry,elsan and overnight accomodation. Community sports and dance hall, changing facilities and rooms for rentable income. 5. Community cafe, shop and exhibition space 6. Phase 2 development of pre-school and meeting facilities 7. Terraced townhouses 8. Bridge with disabled access chairlift and cycle groove 9. Apartments above ground floor car parking 10. Detached townhouse 11. Affordable apartments within redeveloped community building

4. Community Centre proposal

{news_caption}
Proposed entrance to cafe and terrace leading off main sports hall

5. Public square and bridge

{news_caption}
The public Square is designed as a place to bring the community together near the historic St Barnabas Church

6. Residential Buildings

{news_caption}
Elevational view of the townhouses

7. Materials and Inspiration

{news_caption}

8. Overview

{news_caption}
Aerial view