JERICHO WHARF NEWS ITEM

SIAHAF’s proposal

Left, the boatyard docks with community centre hall above. Centre the winding hole for turning boats, the public square and the bridge. Right the restaurant and housing.

Current position on planning application

Posted - Jul 14, 2014

The property development company, the Strategic Iconic Assets Heritage ­Acquisition Fund (SIAHAF), has applied for planning permission to develop the canalside site. ­SIAHAF allocates space on the northern part of the site for a boatyard and a community centre. On the southern part it plans open-market housing, along with some ­affordable housing and a restaurant. There would also be a new canal bridge. This is a significant improvement on previous proposals for the site – which has already been the subject of two failed planning applications. Apart from having a better design, this proposal would deliver key community facilities. It is basically a refinement of what was presented in the public consultations in February. The Jericho Wharf Trust (JWT) had hoped to buy the boatyard site for the community and offered £2 million, but this bid was rejected. SIAHAF then purchased it for £2.6 million. However, this is only part of the overall site. A section of the northern part in Dawson Place is owned by the City Council which rents out garages there. Another section, which would form part of the proposed square, is owned by St Barnabas Church. Also, part of the northern site has a restrictive covenant which says that by 2016 it has to be used for a community centre or revert to the original owners, now the Canal and River Trust. SIAHAF is a private equity fund, which is also currently redeveloping the Grantham House site in Cranham Street. It is managed in the UK by property entrepreneur Johnny Sandelson. Mr ­Sandelson says he stepped in because he wanted to ‘unlock’ a long-conflicted site. He engaged ­Haworth-Tompkins, the same architects that the JWT had used to draw up its own plans. Over several months they discussed with the JWT how best to meet the community requirements. The current plans are SIAHAF’s response. They differ from the JWT’s plan notably in that the community facilities are combined – with the community centre hall built above the boatyard. Although this is feasible, there are significant cost implications. In the JWT plans the community facilities would have cost £5 million to build. On this plan they will cost at least £6.6 million. Since the JWT’s fund-raising plans were based on £5 million this has left a significant gap. JWT is currently in discussions with SIAHAF to see how this might be filled.
Suggested circular seating for public events in the square.
Critical for the development is the public square which will need to be carefully controlled to make it an attractive and well-used public space. For this purpose it has to be managed, and preferably owned, by the community. This is also currently being discussed with SIAHAF. It will be very important for the operation of the boatyard is that it should have additional moorings in front of the canalside houses, so that boats could prepare to enter the boatyard. JWT and SIAHAF are requesting that the Canal and River Trust make these available. A major concern for residents and for the City Council planners will be the provision of affordable housing. The City policy is that in new developments of this size 50% of the housing should be affordable. Most of what SIAHAF is offering is open-market, and thus expensive, housing. There would be 13 two-bedroom ‘town-houses’ along the canal, plus one four-bedroom house and one two-bedroom house. For the affordable housing, it proposes three one-bedroom flats and four two-bedroom flats above the restaurant. Thus, of the 22 residential units, seven are affordable. This amounts to 32% which falls some way short of the City’s requirement. SIAHAF says that this is the maximum it can offer if the site is to be financially viable, pointing out that it has to provide some of the land needed for community facilities as well as the bridge and the square. However, all the requirements had already been well established by the planners before SIAHAF bought the site.
Dawson Place, with the Church on the left and a preschool play space in front of the community centre.
The planning application is now open for public comment. After that, the City Council officers will prepare a report for the West Area Planning Committee. This is a complex application, with multiple landowners,and many legal ramifications. It seems unlikely therefore that it will come before the Planning Committee before October and full resolution could take until the end of the year. If you would like to see and comment on the plans, go to [url=http://www.oxford.gov.uk/planningapplications]http://www.oxford.gov.uk/planningapplications[/url]. Then use the reference number 14/01441/FUL. The application is officially open for comments until July 24, though subsequent inputs that make new points will also be accepted ­until the Planning Committee meeting. To assist the process of consultation the Jericho Community Association will hold a public meeting on July 21 at 7.30 p.m. at St Barnabas School. Summary of proposals for community facilities Boatyard – Two dry docks and one wet dock, two workshops - one exclusively for the boatyard and one for communal use, a chandlery and office, and bunkbed accommodation for boaters who are unable to use their boats due to work being carried out on them. There should also be extra service moorings alongside for those entering and exiting the docks but these have not yet been granted by the Canal and River Trust. Community Centre – Café, multipurpose hall, and preschool with external play space. Other rooms would be used for a range of activities or rented to local businesses to generate income. The building will largely be constructed in wood to give an ‘industrial feel’. Public square – With outdoor seating for the café and restaurant and space for markets and outdoor events. Bridge – This would be a low-level swing bridge. It would probably be ‘up’ around six minutes every hour.

A view of the proposed development from the other side of the canal. Left to right: the boatyard and community centre, St Barnabas Church, the restaurant with affordable flats above, the 13 two-bedroom terraced houses, and a single house to the right.

Bridge into the square with outdoor seating for the community cafe and the restaurant

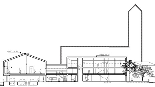
A cross-section of the boatyard and community centre. An outline of the church (which would be in front of this view) is shown for scale.

Recent news items

Why a public space and a bridge

Why a new Community Centre

{news_caption}

The canalside site offers a wonderful opportunity to create a new and vibrant hub on the Wharf site

Landowner’s bid to bypass community centre and boatyard requirements with a student flats development

{news_caption}

Banners protest about narrow developer objectives for the site

Why a community boatyard

{news_caption}

The CPO can be based on an approved planning designs, such as this one from 2015.

Residents angry at ‘shameful’ derelict Wharf site

{news_caption}

David Edwards, Maggie Black and David Feeny

Jericho Wharf Trust

The Jericho Wharf Trust is responsible for all aspects of the campaign to develop the Jericho Wharf canalside site in Oxford on behalf of the community

For a visual history of the Jericho Wharf project, please click HERE for our image gallery